Commercial Electrical Inspection Form

Approved Electrical Contractors located in Leicester Armson

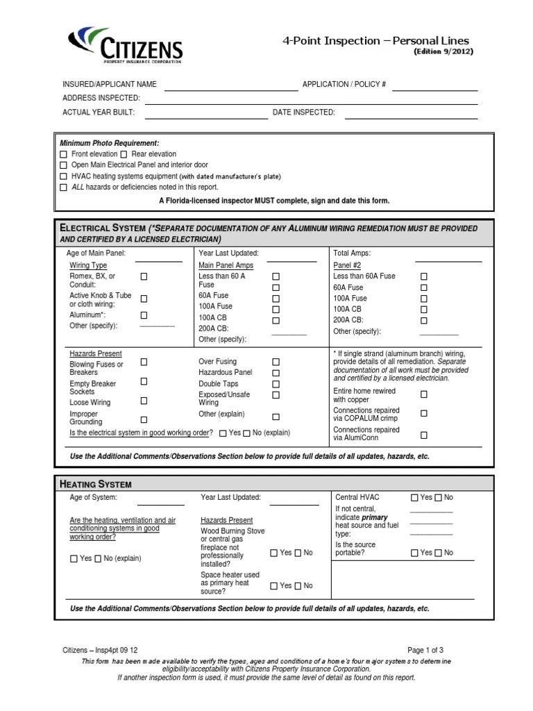
Commercial Electrical Inspection Form. You can customize, access and download an electrical inspection checklist form for desktop or download our mobile app to use this electrical inspection checklist form on your tablet or mobile device for free. Web electrical inspection checklist form template for the inspection, testing, and maintenance of electrical systems and equipment.

Approved Electrical Contractors located in Leicester Armson
Approved Electrical Contractors located in Leicester Armson

Web this pdf contains 77 electrical inspection checklists taken from the 2014 electrical inspection manual with checklists. Web as an advanced mobile forms solution for businesses of all sizes, doforms allows you to say goodbye to messy paper checklists and get organized, from inspections to data collection, record keeping, scheduling and. Building permit on the card is the same as on the route. Web the following checklist provides assistance in determining an electrical code review and inspection checklist for low rise commercial buildings with mixed use occupancies. (e.g., an electrician may sign off only on the electrical section of the form.) documenting the condition of each system. Fee sheets break down the cost of permit by category. This guide contains 77 most important electrical inspection checklists taken from the 2014 electrical inspection manual with checklists. Web go paperless and convert your existing electrical inspection checklists and templates into our digital format. Web to obtain an electrical permit. The checklists are in pdf format and can be completed electronically or printed and used as hard copy.

Web this pdf contains 77 electrical inspection checklists taken from the 2014 electrical inspection manual with checklists. Web this pdf contains 77 electrical inspection checklists taken from the 2014 electrical inspection manual with checklists. Select the permit type and the electrical category on the form. Fee sheets break down the cost of permit by category. This guide contains 77 most important electrical inspection checklists taken from the 2014 electrical inspection manual with checklists. Electrical inspection checklists (checking, verifying and. Web to obtain an electrical permit. Building permit on the card is the same as on the route. Web go paperless and convert your existing electrical inspection checklists and templates into our digital format. The checklists are in pdf format and can be completed electronically or printed and used as hard copy. Nec chapter 3, articles 358.10 (emt), 342.10 (imc), 344.10 (rmc),