Jsa Form Pdf

Jsa Booklet Fill Online, Printable, Fillable, Blank pdfFiller

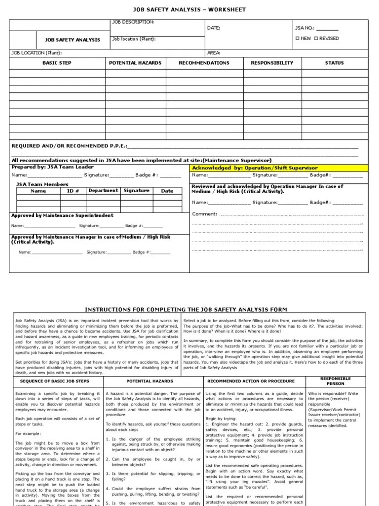
Jsa Form Pdf. Web details file format pdf size: Is (jsa) is an important accident prevention tool that works by finding.

Jsa Booklet Fill Online, Printable, Fillable, Blank pdfFiller
Jsa Booklet Fill Online, Printable, Fillable, Blank pdfFiller

Ad identify, analyze, communicate and reduce the risks associated with any job or task. Web job safety analysis (jsa) is an important analyzing tool that works by finding hazards and eliminating or minimizing them before the task is performed, and before a hazard has a. Web hazard assessment and job safety analysis there are many definitions for “hazard” but the more common definition when talking about workplace health and safety is: Ad upload, modify or create forms. Web job safety analysis (jsa) form. Web instructions for completing the job safety analysis form job safety analys. Type text, add images, blackout confidential details, add comments, highlights and more. This template, available in pdf and other formats, helps streamline the work. Title of person who does job: Reduce administrative burden of compliance & ehs programs.

Web details file format pdf size: 103.6 kb | 125.7 kb. Type text, add images, blackout confidential details, add comments, highlights and more. Edit your jsa forms online. This template, available in pdf and other formats, helps streamline the work. 14 kb download free job safety analysis form ihsa.ca details file format pdf size: Ad identify, analyze, communicate and reduce the risks associated with any job or task. Ad upload, modify or create forms. Jsas are systematic examinations and documentation of every task within. Web a job hazard analysis (jha) form is an excellent resource for identifying and reducing risks at work. Try it for free now!